te koop

Duplex te koop in Uccle Moensberg 43/2, 1180 Ukkel
€ 260.000
  • 2 kamers
  • 1 badkamers
  • 69 m²

Omschrijving

Maxime Real Estate stelt u een CASCO duplex met 2 slaapkamers voor.

Ideaal gelegen op de grens van de vier gemeenten Drogenbos - Ukkel - Beersel en Linkebeek, op 200 m van het station Moensberg en in de nabijheid van Delhaize Beersel en het Lycée Français.

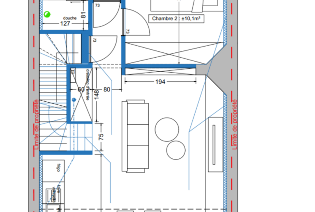
De duplex van ± 69 m², gelegen op de 1e en 2e verdieping (zolder) van een klein gebouw met 2 wooneenheden, is volledig te renoveren (casco) en vormt een uitstekende opportuniteit voor een project op maat.

De 1e verdieping biedt voldoende oppervlakte voor de inrichting van een mooie leefruimte van ongeveer 33,6 m² met woonkamer en open keuken, met toegang tot een aangenaam terras van ± 13 m², georiënteerd op het zuidwesten.
Aan de straatzijde is het eveneens mogelijk een slaapkamer en een badkamer te voorzien.

Het bovenste niveau (zolder) laat de inrichting toe van een tweede slaapkamer van ± 21 m², waardoor een totaal van 2 slaapkamers mogelijk is.

Het pand beschikt bovendien over een ruime privatieve kelder van ongeveer 12 m².

Er werd reeds een stedenbouwkundige vergunning verleend voor de omvorming tot een duplex met 2 slaapkamers, wat zorgt voor een duidelijk en juridisch veilig kader voor het project.

Om u beter te laten inleven in de mogelijkheden, werden er simulatiefoto’s vóór/na de werken gemaakt die de verschillende inrichtingsmogelijkheden illustreren.

Beschikbaar bij akte.

De garage maakt geen deel uit van de verkoop.

Wenst u meer informatie over dit pand? Contacteer ons: 02.771.16.35 of info@maxime-realestate.be

De verstrekte informatie en vermelde oppervlaktes zijn louter indicatief en houden geen enkele juridische verbintenis in.

Uw makelaar

Morgane Franceus

Morgane Franceus

Details

Contacteer ons

Wij kijken ernaar uit u verder te helpen, te adviseren en van dienst te zijn. Aarzel niet om contact met ons op te nemen!

U moet uw voornaam invullen.
U moet uw naam invullen.
U moet uw e-mailadres invullen.
U moet een bericht invullen.
U moet akkoord gaan met onze algemene voorwaarden.

vergelijkbare panden

Voordat je vertrekt

Ontdek onze diensten