for sale

Duplex for sale in Uccle Moensberg 43/2, 1180 Uccle
€ 260.000
  • 2 rooms
  • 1 bathrooms
  • 69 m²

Description

Maxime Real Estate presents this 2-bedroom CASCO duplex.

Ideally located at the border of the four municipalities of Drogenbos, Uccle, Beersel and Linkebeek, just 200 m from Moensberg train station and close to Delhaize Beersel and the Lycée Français.

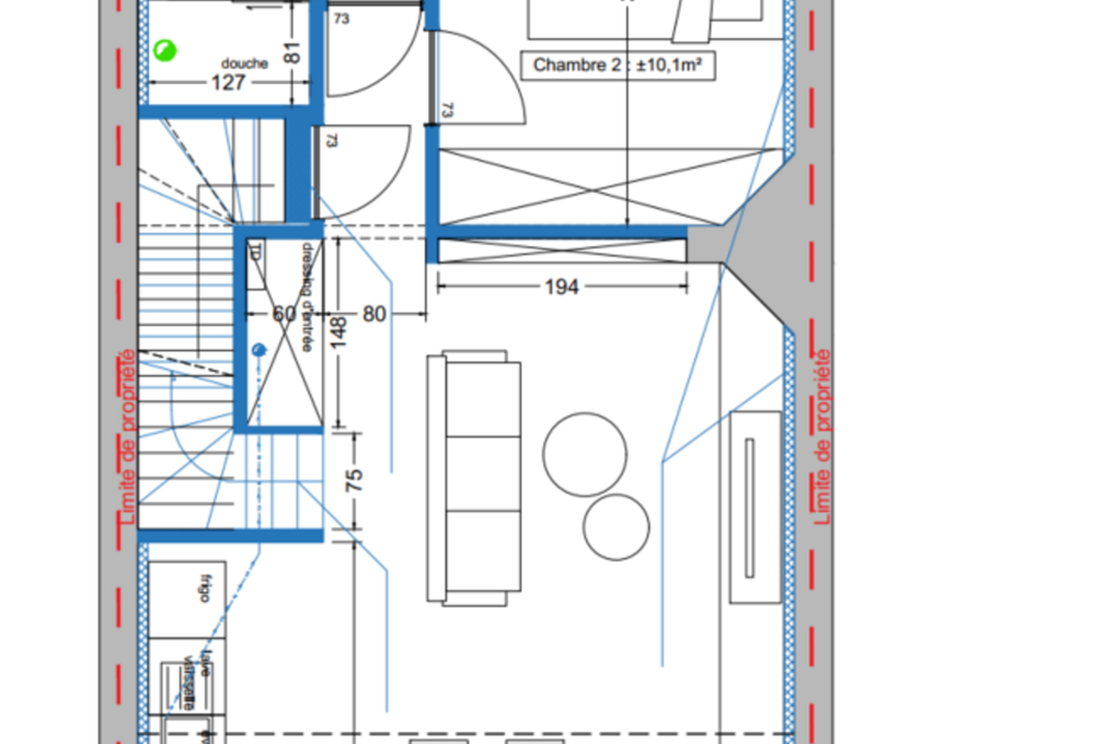
The duplex of ± 69 m² is situated on the 1st and 2nd floors (attic) of a small building with 2 residential units. Fully to be renovated (CASCO condition), it represents an excellent opportunity for a tailor-made project.

The 1st floor offers sufficient space to create a beautiful living area of approximately 33.6 m² with a living room and open kitchen, providing access to a pleasant ± 13 m² south-west facing terrace.
On the street side, it is also possible to create a bedroom and a bathroom.

The upper level (attic) allows for the creation of a second bedroom of ± 21 m², offering a total potential of 2 bedrooms.

The property also benefits from a large private cellar of approximately 12 m².

The garage is not included in the sale.

A building permit has already been granted for the conversion into a 2-bedroom duplex, providing a clear and secure framework for the project.

To help you better visualize the possibilities, before/after renovation simulation photos have been created, illustrating different layout options.

Available upon deed.

Would you like more information about this property? Contact us at +32 2 771 16 35 or info@maxime-realestate.be.

The information provided and the stated surface areas are purely indicative and do not constitute any legal commitment.

Your broker

Morgane Franceus

Morgane Franceus

Details

Contact us

We are happy to help, advise and serve you. Do feel free to contact us !

You need to enter your firstname.
You need to enter your name.
You need to enter your e-mail.
You need to enter a(n) message.
You must agree with our terms and conditions.

related properties

Before you leave

Discover our services

Are you a property owner?

Discover your home's value today

Free valuation

Be the first to know about the newest properties on the market

Keep me posted