à vendre

Duplex à vendre à Uccle Moensberg 43/2, 1180 Uccle
€ 260.000
  • 2 chambres
  • 1 salles de bains
  • 69 m²

Description

Maxime Real Estate vous présente un duplex 2 chambres CASCO.

Idéalement situé à la limite des quatre communes de Drogenbos - Uccle - Beersel et Linkebeek, à 200m de la gare de Moensberg et à proximité du Delhaize de Beersel et du Lycée Français.

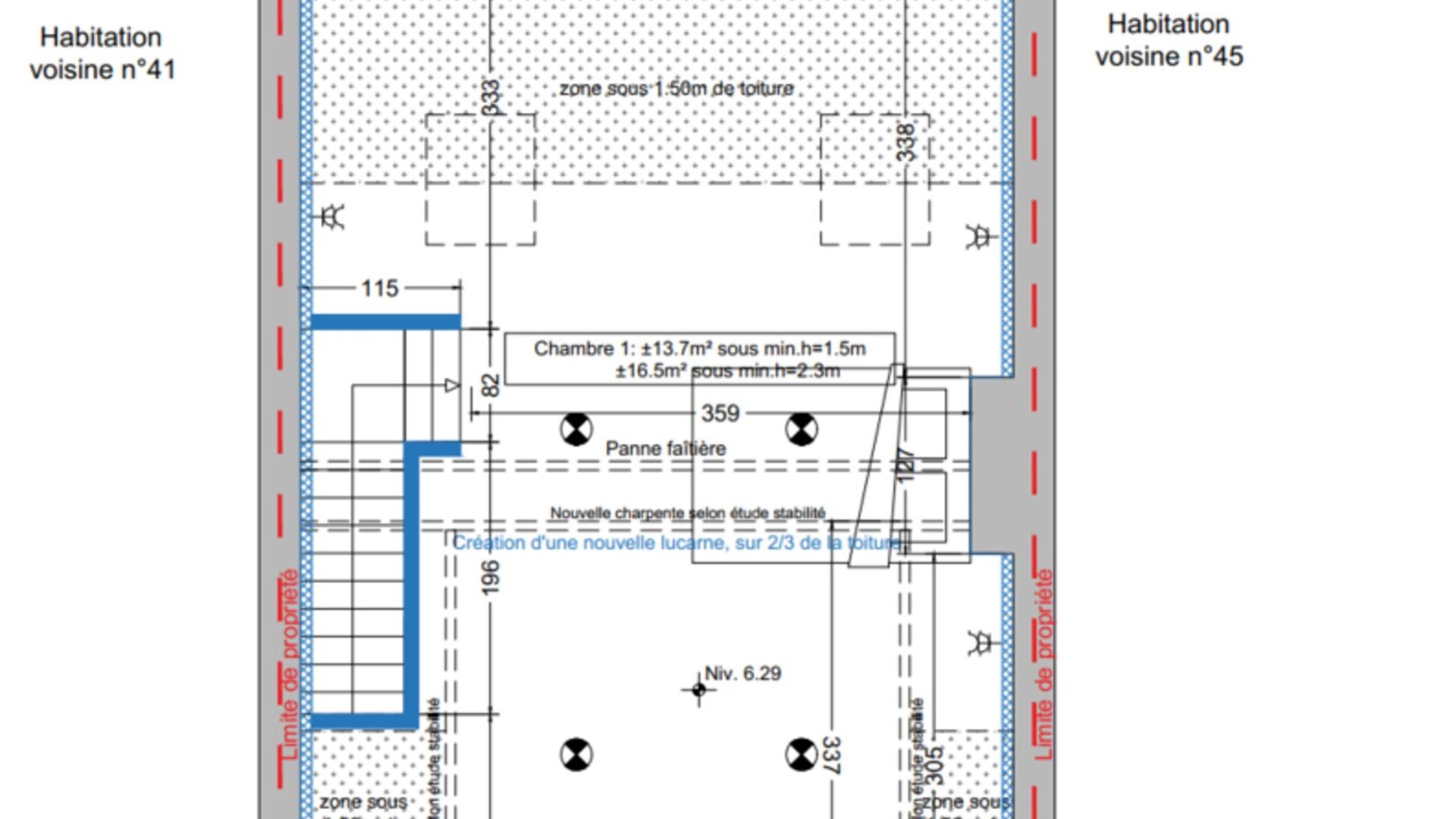
Le duplex +/- 69m² situé aux 1er et 2e étages (grenier) d’un petit immeuble de 2 habitations, ce duplex entièrement à rénover (état casco) constitue une excellente opportunité pour un projet sur mesure.
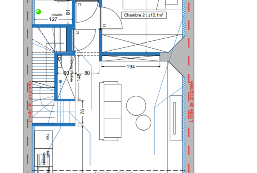
Le 1er étage offre une superficie permettant l’aménagement d’un bel espace de vie d’environ 33,6 m² avec séjour et cuisine ouverte, donnant accès à une agréable terrasse de ± 13 m² orientée sud-ouest.
Côté rue, il est également possible d’aménager une chambre ainsi qu’une salle de bain.
Le niveau supérieur (grenier) permet la création d’une seconde chambre ± 21m², offrant ainsi un potentiel de 2 chambres au total.

Le bien bénéficie également d’une grande cave privative d’environ 12 m².

Un permis d’urbanisme a d’ores et déjà été octroyé pour la transformation en duplex 2 chambres, offrant ainsi un cadre clair et sécurisé pour le projet.

Afin de mieux se projeter, des photos de simulation avant/après travaux ont été réalisées et illustrent les différentes possibilités d’aménagement.

Disponible à l'acte.

Vous désirez plus d’information au sujet de ce bien ? Contactez-nous : 02.771.16.35 ou info@maxime-realestate.be

Les informations fournies et les surfaces indiquées sont purement indicatives et n'impliquent aucun engagement juridique.

Votre courtier

Morgane Franceus

Morgane Franceus

Details

Contactez nous

Nous sommes prêts à vous aider, conseiller et servir. Contactez-nous !

Vous devez entrer votre prénom.
Vous devez entrer votre nom.
Vous devez entrer votre e-mail.
Vous devez entrer un message.
Vous devez accepter nos termes et conditions.

propriétés similaires

Avant de partir

DÉCOUVREZ NOS SERVICES